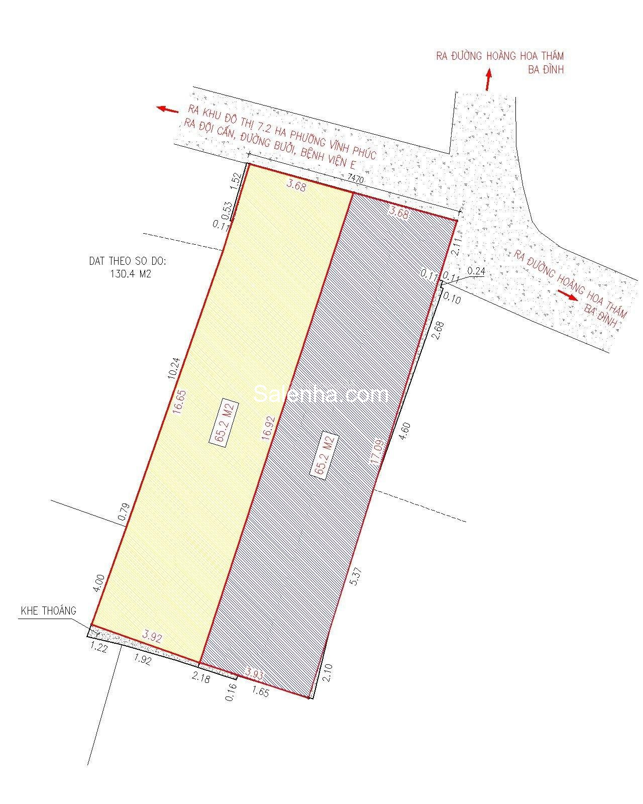
Đất 130m2 đườngHoàng Hoa Thám, Ba Đình - Giá 127 triệu/m²
Diện tích đất 130,4m² mặt tiền 7,75m; mặt hậu 7,88m.
Giá 127 triệu/m².
Thích hợp xây toà(miễn TG), sổ đỏ vuông vức, không dính QH.
Số điện thoại chính chủ:
Đăng nhập để xem
Ngày 19-06-2024
- Bán nhà cấp 4 Phố Vọng, Đồng Tâm, Hai Bà Trưng - 17.8 tỷ
- Bán căn 2N Chung cư Sky Light, Minh Khai, Quận Hai Bà Trưng - 9 tỷ
- Bán nhà 5 tầng Xuân Phương, Nam Từ Liêm - 5,95 tỷ
- Bán Nhà 8 tầng đường Giáp Bát, Hoàng Mai - Giá 25.5 tỷ (Tăng giá)
- Bán căn 2N Chung cư A10-A14 Nam Trung Yên, Yên Hòa, Phường Yên Hoà, Quận Cầu Giấy - 5,5 tỷ
- Bán căn 3N Chung cư Vinaconex GolddenSilk Kim Văn Kim Lũ, Đại Kim, Hoàng Mai - 8,3 tỷ
- Bán căn 2N Chung cư Hồng Hà Ecocty, Đường nối cao tốc Pháp Vân - Cầu Giẽ với Vành Đai 3, Phường Yên Sở, Quận Hoàng Mai - 6,5 tỷ
- Bán nhà 5 tầng Lý Thường Kiệt, phường Kiến Hưng, Hà Đông - 13,5 tỷ